Friköpta radhus, 125 kvm







- Upplåtelseform
- Äganderätt
- Pris från
- 4 550 000 kr
- Boyta
- 125 kvm
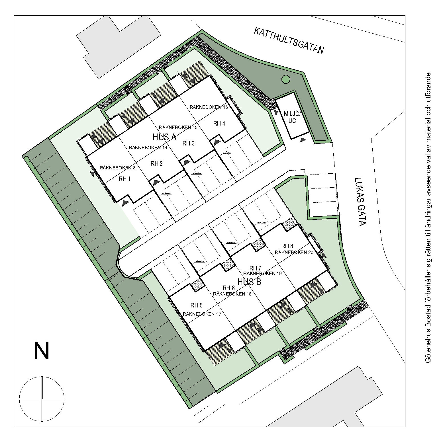
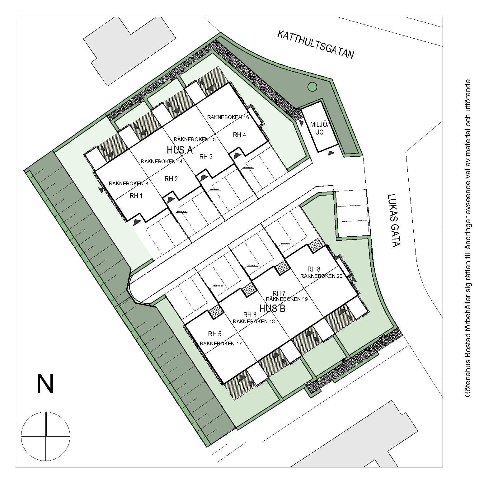
Här planerar vi att uppföra 8 radhus som äganderätter! Ljusa, luftiga radhus i två plan på 125 kvm. Här bor du naturskönt, lugnt och barnvänlig.
När du kliver in i radhuset möts du av ljusa sociala ytor, där kök och vardagsrum ligger i fil. Det stora köket med köksö är den perfekta platsen för umgänge. Övre plan har tre sovrum, bad och ett allrum som kan bli ett fjärde sovrum. Föräldrasovrummet kan avskiljas för extra integritet med en klädkammare/kontorsnisch.
Framför huset finns plats för 2 bilar. Baksidan har förråd och en skyddad uteplats.
Här kommer du trivas!
- Bostad
- 1Såld
- Pris
- -
- Boyta
- 125 kvm
- Rum
- 5
- Inflytt
- Kv 1, 2027
- Bofakta
- Bostad
- 2Såld
- Pris
- -
- Boyta
- 125 kvm
- Rum
- 5
- Inflytt
- Kv 1, 2027
- Bofakta
- Bostad
- 3Till salu
- Pris
- 4 550 000 kr
- Boyta
- 125 kvm
- Rum
- 5
- Inflytt
- Kv 1, 2027
- Bofakta
Kontaktpersoner




